Nowe mieszkania w Wałczu budynek D

O inwestycji

Poznaj nowe nieruchomości nad jeziorem Raduń w Wałczu

Urokliwa okolica i doskonała lokalizacja apartamentów nad jeziorem Raduń to zdecydowane atuty naszej inwestycji. Bliskość przyrody, możliwość aktywnego odpoczynku z dala od miejskiego zgiełku i przepiękne widoki będą docenione w szczególności przez osoby ceniące spokój i prywatność.

O inwestycji

Budynek wolnostojący, posiada cztery kondygnacje nadziemne, wyposażony w windę osobową. W budynku przewidziano 23 mieszkania. Na sprzedaż oferujemy mieszkania bezczynszowe w stanie deweloperskim. Jedyne opłaty stanowią media i opłaty eksploatacyjne. Funkcjonalny układ pomieszczeń zapewnia optymalne wykorzystanie całej powierzchni. Do każdego z mieszkań przynależy komórka lokatorska. W budynku uwzględniono sześć podziemnych garaży. Na terenie osiedla usytuowane będą parkingi. Mieszkania na I, II i III piętrze posiadać będą balkony, natomiast przy mieszkaniach w części parterowej zaprojektowano przestronne ogródki. W oknach znajdować się będą funkcjonalne rolety zewnętrzne.

Piękna okolica

W najbliższej okolicy znajduje się ośrodek przygotowań olimpijskich, gdzie można skorzystać z klubu fitness, basenu i obiektów sportowych. Przy planowanym osiedlu WIDOK dookoła jeziora Raduń jest również ścieżka rowerowo-piesza gdzie można czynnie uprawiać sport. Ok. 200 m od osiedla Widok mieści się przystań, w której można uprawiać sporty wodne. Okolice osiedla WIDOK oferują wspaniałe walory rekreacyjne i zachęcają do aktywnego wypoczynku. Po ukończeniu prac budowlanych teren zostanie ogrodzony i powstanie zamknięte, bezpieczne osiedle. Wokół budynków powstaną tereny zielone.

inwestycja w liczbach

Łączna powierzchnia: 1723
Kondygnacje: 4
Ilość mieszkań: 24
Garaże: tak, 6 miejsc

Lista lokali

Lokal 0/2 Wałcz budynek D

  • Hol
    7,79
  • Salon + aneks
    23,66
  • Pokój
    11,44
  • Pokój
    12,32
  • Łazienka
    4,79
  • Powierzchnia użytkowa
    59.21 m²
  • Komórka lokatorska:
    6,89 m²
  • Ogród:
    14,64 m²
  • Powierzchnia całkowita
    66,1 m²
Cena lokalu: 455 000 zł
(7 684,51 zł/m²)

Historia ceny z ostatnich 30 dni:

Cena nie została zmieniona przez więcej niż 30 dni.

(Powyższa lista pokazuje wszystkie znalezione rekordy bez względu na wysokość ceny)

Lokal 0/3 Wałcz budynek D

  • Hol
    7,66
  • Łazienka
    467
  • Pokój
    12,17
  • Pokój
    11,21
  • Salon + aneks
    23,50
  • Powierzchnia użytkowa
    59.21 m²
  • Powierzchnia całkowita
    65,96 m²
Cena lokalu: 455 000 zł
(7 684,51 zł/m²)

Zakup obligatoryjny (należy doliczyć do ceny lokalu)

  • Komórka lokatorska 22 000 zł
  • W przypadku miejsc postojowych istnieje możliwość wyboru jednego z wymienionych jako zakup obligatoryjny

Historia ceny z ostatnich 30 dni:

Cena nie została zmieniona przez więcej niż 30 dni.

(Powyższa lista pokazuje wszystkie znalezione rekordy bez względu na wysokość ceny)

Lokal 1/2 Wałcz budynek D

  • Hol
    7,59
  • Łazienka
    4,59
  • Pokój
    11,32
  • Pokój
    12,20
  • Salon + aneks
    23,31
  • Powierzchnia użytkowa
    59.01 m²
  • Powierzchnia całkowita
    65,21 m²
Cena lokalu: 454 999 zł
(7 710,54 zł/m²)

Historia ceny z ostatnich 30 dni:

Cena nie została zmieniona przez więcej niż 30 dni.

(Powyższa lista pokazuje wszystkie znalezione rekordy bez względu na wysokość ceny)

Lokal 1/3 Wałcz budynek D

  • Hol
    7,64
  • Łazienka
    4,64
  • Pokój
    12,08
  • Pokój
    11,19
  • Salon + aneks
    2346
  • Powierzchnia użytkowa
    59.01 m²
  • Powierzchnia całkowita
    65,21 m²
Cena lokalu: 454 998 zł
(7 710,52 zł/m²)

Historia ceny z ostatnich 30 dni:

Cena nie została zmieniona przez więcej niż 30 dni.

(Powyższa lista pokazuje wszystkie znalezione rekordy bez względu na wysokość ceny)

Lokal 2/2 Wałcz budynek D

  • Hol
    7,60
  • Salon + aneks
    23,20
  • Pokoj
    11,21
  • Pokoj
    11,81
  • Łazienka
    4,55
  • Powierzchnia użytkowa
    58.37 m²
  • Powierzchnia całkowita
    64,52 m²
Cena lokalu: 455 000 zł
(7 795,10 zł/m²)

Historia ceny z ostatnich 30 dni:

Cena nie została zmieniona przez więcej niż 30 dni.

(Powyższa lista pokazuje wszystkie znalezione rekordy bez względu na wysokość ceny)

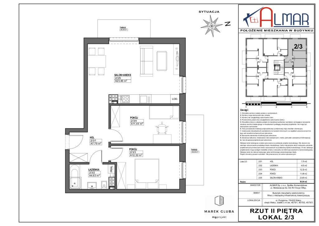
Lokal 2/3 Wałcz budynek D

  • Hol
    7,63
  • Łazienka
    4,53
  • Pokój
    12,03
  • Pokój
    11,35
  • Salon + aneks
    23,33
  • Powierzchnia użytkowa
    58.87 m²
  • Powierzchnia całkowita
    65,01 m²
Cena lokalu: 455 000 zł
(7 728,89 zł/m²)

Historia ceny z ostatnich 30 dni:

Cena nie została zmieniona przez więcej niż 30 dni.

(Powyższa lista pokazuje wszystkie znalezione rekordy bez względu na wysokość ceny)

Lokal 3/3 Wałcz budynek D

  • Hol
    7,64
  • Łazienka
    4,47
  • Pokój
    12,11
  • Pokój
    11,30
  • Salon + aneks
    23,14
  • Powierzchnia użytkowa
    58.66 m²
  • Powierzchnia całkowita
    64,70 m²
Cena lokalu: 455 000 zł
(7 756,56 zł/m²)

Historia ceny z ostatnich 30 dni:

Cena nie została zmieniona przez więcej niż 30 dni.

(Powyższa lista pokazuje wszystkie znalezione rekordy bez względu na wysokość ceny)

Zobacz nasze pozostałe inwestycje